Sommerhusområder
Kontakt
Gavekort
Husejer
Feriebolig i Blåvand

11 Sovepladser

5 Soveværelser

Strand : 250 Meter

Beskrivelse

Dette hyggelige sommerhus har en helt fantastisk beliggenhed. Med under 300 meter til Vesterhavet danner dette sommerhus den ultimative ramme for en ferie fyldt med oplevelser. Udover at huset ligger perfekt i forhold til at få sig en frisk dukkert ved stranden, så har sommerhuset også en masse andre skønne faciliteter at byde på.
Udendørs på den flotte naturgrund befinder en stor og charmerende terrasse sig. Her står lækre havemøbler klar til en lun og rolig solskinsdag. Terrassen er helt aflukket, hvilket kan give børnefamilien ro i sindet, når de mindste lukkes ud i den friske luft.
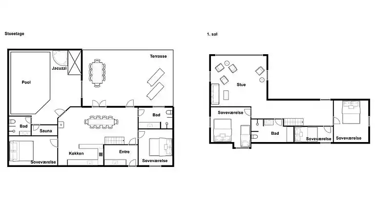
Indendørs er huset indrettet med kvalitetsmaterialer og flotte møbler. I det store åbne køkkenalrum er der god plads til at hele familien kan hygge sig imens måltiderne bliver tilberedt eller spist. Ud fra køkkenet er der adgang til husets velholdte og rummelige pool- og spaområde, hvor hele familien kan svømme og have det sjovt uanset, hvordan vejret er udenfor. På husets første sal ligger opholdsstuen. Herfra er der en storslået havudsigt, samt udsigt ud over det smukke naturområde som sommerhuset befinder sig i. Stuen er indrettet med komfortable møbler, hvor der er rig mulighed for at sidde med en aftendrink eller kop kaffe alt imens udsigten nydes. Sommerhuset har i alt 5 fine soveværelser med god opbevaringsplads til den medbragte bagage. Sommerhusets tre badeværelser er alle moderne indrettet, med bruser, toilet og vask. Badeværelserne er ydermere meget rummelige med masser af bordplads ved eller i nærheden af håndvaskene.
Shopping og andre aktiviteter i Blåvand
Trænger I alligevel til adspredelse, er der masser af gode tilbud i Blåvand og omegn. Langs hele hovedgaden finder du mange forskellige muligheder for shopping. Her ligger både tøjbutikker, spændende butikker med boliginteriør og tilbehør samt lokale ravkunstnere, gallerier og spisesteder. Desuden finder du flere forskellige dagligvarebutikker, samt bagerier og en slagter.
Sommerhuset er røgfrit og ungdomsgrupper er ikke tilladt.

Faciliteter

Soveværelse
  • Sovepladser : 11
  • Soveværelser : 5
  • Dobbeltsenge : 5
  • Enkeltsenge : 1
  • Barneseng
Badeværelse
  • Sauna
  • Badeværelser : 3
Sommerhus med pool
  • Indendørs pool : Privat
Afstande
  • Strand : 250 Meter
  • Butikker : 1400 Meter
  • Restauranter : 1400 Meter
  • Vand : 250 Meter
Faciliteter - køkken
  • Opvaskemaskine
  • Ovn
  • Fryser størrelse (liter) : 200
  • Mikroovn
  • Kedel
Faciliteter - indendørs
  • Størrelse m2 : 227
  • Brændeovn
  • TV
  • Satellit/Kabel TV
  • Tyske kanaler
  • Børnehøjstol
  • Gulvvarme : Delvis
  • Opvarmningsform : El-radiatorer
  • Trådløst internet
  • Byggeår : 1992
  • Renoveringsår : 2011
Faciliteter - udendørs
  • Grund : Klitgrund
  • Solsenge
  • Havemøbler
Tilgængelighed
  • Husdyr tilladt : Nej
  • Rygning : Rygning forbudt
Afslapning
Udsigt

Boligens placering

Anmeldelser

Christina B

9. okt. 2022

Rengøring Ja,es war alles sauber,aber Lange Spinnweben,naja,wir haben mit den Besen nachgeholfen,alles gut!!!

Bliv inspireret af relaterede destinationer