Sommerhusområder
Kontakt
Gavekort
Husejer
Feriebolig i Skagen

6 Sovepladser

3 Soveværelser

Strand : 100 Meter

Beskrivelse

RENGØRING ER INKLUDERET I PRISEN
EL AFREGNES EFTER FORBRUG

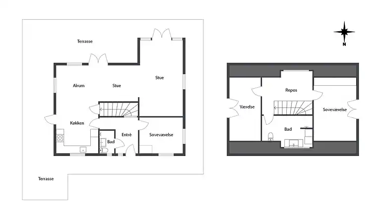
Super flotte 140 m2 indrettet i to plan. Dejlig, god plads til 6 personer. Der er tre lækre soveværelser og to badeværelser. Stort, kombineret køkken alrum og stue, som er husets hjerte. Lækkert køkken med alle moderne faciliteter. Dejlig spiseplads midt i køkken alrummet og herfra forrygende udsigt til klitter med marehalm og det gamle sømærke på bakken bag Ruths Hotel. Opholdsstuen er indrettet med flotte, lyse møbler, væghængt fladskærmstv samt karnap/læsehjørne med store lænestole. Her nydes feriekrimien, en cognac til kaffen eller bare udsigten til naturen i Gl. Skagen. 

Boligens ene soveværelse med stor lækker dobbeltseng er indrettet i stueetagen. De to øvrige soveværelser findes på 1-salen. Det ene ligeledes med stor lækker dobbeltseng og det andet med to skønne enkeltsenge samt skrivebord. Begge badeværelser er indrettet med bruseniche og det ene badeværelse er desuden udstyret med vaskemaskine og tørretumbler, og udgør således husets vaskecentral.

Overalt lækre lyse rum med flotte, udvalgte møbler, der passer perfekt til det smukke Skagenhus.

Udendørs forkæler boligen med skøn sydvendt terrasse med havemøbler, grill, flere havebænke og dekorative krukker med blomster.

HUSDYR:
Husdyr ikke tilladt.

GODT AT VIDE:
Lejer skal være fyldt 25 år og være til stede i hele lejeperioden.
Nabohus til Ruths Hotel i Gl. Skagen.
Parkeringsmulighed til 3 biler foran huset.
Obligatorisk slutrengøring.
Forbrug aflæses. Der betales iflg. aflæsning.
Rengøring af havegrill er ikke inkluderet i prisen, men påhviler lejer (også ved obligatorisk og bestilt slutrengøring).
Der er IKKE parasol til rådighed.

NÆRMESTE INDKØB:
MENY-supermarked 2 km. fra ferieboligen.

OFFENTLIG TRANSPORT:
Frederikshavnsvej Station (trinbræt) 2,8 km. fra ferieboligen.

SEVÆRDIGHEDER I OMRÅDET:
Start f.eks. dagen med en dukkert i det kølige og lindrende vand ved en af de mange strande i Gl. Skagen. Herefter nydes morgenmaden hjemme på terrassen før dagens program starter. En kort tur til fods fra ferieboligen ligge Den Tilsandede Kirke, hvor I kan opleve, hvad tidligere tiders sandflugt betød for området. På vejen til Den Tilsandede Kirke kommer I forbi Naturhistorisk Museum, der i dag har til huse i den tidligere Højen Station. 

3 km. mod nord finder I Skagen by med masser af detailbutikker, kunsthåndværkere, caféer og restauranter. I forbindelse med jeres ferie skal I naturligvis også en tur på Grenen, Danmarks yderste spids, hvor havene Kattegat og Skagerrak mødes. I skal også besøge Det Grå Fyr, hvor der fra toppen er den smukkeste udsigt over området på Grenen og ind over Skagen by. Der er mange fyr i området. Book f.eks. en guidet tur "Fyrminoen" (www.toppenafdanmark.dk), hvor den spændende historie fortælles.

Faciliteter

Soveværelse
  • Sovepladser : 6
  • Soveværelser : 3
  • Dobbeltsenge : 2
  • Enkeltsenge : 2
Badeværelse
  • Bruser
  • Badeværelser : 2
Afstande
  • Strand : 100 Meter
  • Butikker : 1000 Meter
Faciliteter - køkken
  • Opvaskemaskine
  • Køleskab
  • Fryser størrelse (liter) : 70
  • Komfur : Induktion
  • Komfur : El-kogeplader
  • Mikroovn
  • Kaffemaskine : Almindelig
  • Kedel
  • Emhætte
  • Brødrister
  • Fryser
Faciliteter - indendørs
  • Størrelse m2 : 140
  • TV
  • Satellit/Kabel TV
  • Streamingtjenester : Netflix
  • Skandinaviske kanaler
  • Vaskemaskine
  • Tørretumbler
  • Strygejern
  • Strygebræt
  • Støvsuger
  • Gulvvarme : Badeværelser
  • Opvarmningsform : Varmepumpe
  • Opvarmningsform : El-radiatorer
  • Trådløst internet
  • Byggeår : 1979
Faciliteter - udendørs
  • Privat have
  • Grund : Naturgrund
  • Elbil ladestation
  • Parkering : Gratis
  • Havemøbler
Tilgængelighed
  • Husdyr tilladt : Nej
  • Rygning : Rygning forbudt
Udsigt
Sø og flod

Boligens placering

Bliv inspireret af relaterede destinationer